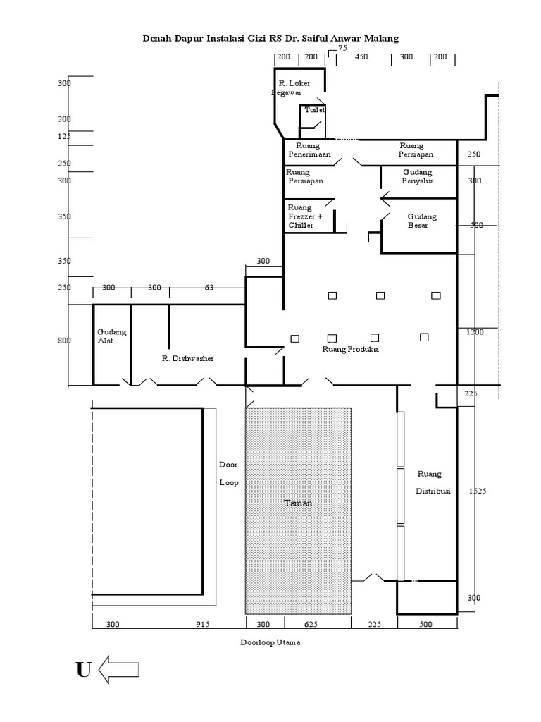
denah ruangan rumah sakit saiful anwar malang - Denah Ruangan pada kesempatan kali ini akan membagikan beberapa koleksi gambar mengenai denah ruangan rumah sakit saiful anwar malang sebagai referensi anda. Beberapa gambar dibawah ini diambil dan dipilih dari berbagai sumber atau link di internet, silahkan lihat lebih lengkapnya dibawah ini. Semoga postingan ini bermanfaat sebagaimana keperluan anda.
Http Bppsdmk Kemkes Go Id Pusdiksdmk Wp Content Uploads 2018 09 Sistem Penyelenggaraan Makanan Institusi Sc Pdf
Lihat Gambar Full
Itulah 15 gambar terbaik yang berhubungan dengan denah ruangan rumah sakit saiful anwar malang, jangan lupa lihat juga postingan tentang denah ruangan lainnya hanya di denahruangan.blogspot.com . Silahkan share link postingan ini di Facebook / Twitter / Pinterest dan lainnya jika anda menyukainya, serta berikan kami komentar, kritik dan sarannya. Terima Kasih







